Gyártósor szállítókocsi
Termék bemutatása

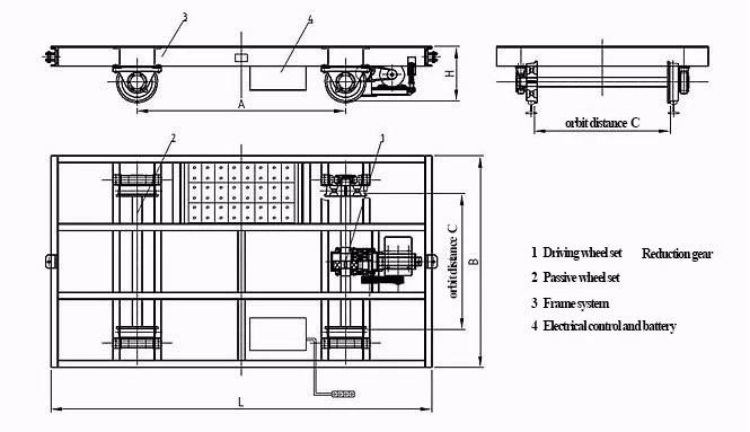
A motoros lánctalpas szállítójármű egy erőforrásból, egy hajtóműből, egy acélszerkezetű tartóvázból, egy kormányműből, egy mozgószerkezetből, egy vezérlőrendszerből és egy hibadiagnosztikai modulból áll. Ezen kívül egyéb funkciókkal és kiegészítőkkel is rendelkezik, mint például a betonpadlón megforduló funkció. Minden elektromos lánctalpas szállítójármű fel van szerelve riasztóval és biztonsági érzékelő berendezéssel. Ha a szállítójármű akadályba vagy gyalogosba ütközik a haladási útján, megszólal a riasztó, és a jármű azonnal leáll a közlekedés biztonsága érdekében.
Részletes képek



Paraméterlap

|
Asztal mérete (m) |
3.6*2.0*0.5 |
4.5*2.2*0.6 |
5.5*2.5*0.65 |
6.0*2.6*0.8 |
6.5*2.8*0.9 |
10*3.0*1.2 |
|
Erő |
Karbantartásmentes akkumulátor |
|||||
|
Sín belső nyomtáv |
1435 mm |
1435 mm |
1435 mm |
1800 mm |
2000 mm |
2000 mm |
|
Kerék átm. |
350 mm |
400 mm |
500 mm |
600 mm |
600 mm |
600 mm |
|
Futássebesség |
0-20 m/perc |
0-20 m/perc |
0-20 m/perc |
0-20 m/perc |
0-20 m/perc |
0-20 m/perc |
|
Motor erő |
1,6 kW |
3,5 kW |
5kW |
8kW |
10kW |
15kW |
|
Akkumulátor-kapacitás |
180 Ah |
250 Ah |
330 Ah |
400 Ah |
440 Ah |
600 Ah |
|
Akkumulátor feszültség |
48v |
48v |
48v |
72v |
72v |
72v |
Alkalmazási forgatókönyvek

Csomagolás

Rólunk




Népszerű tags: gyártósor transzfer kocsi, kínai gyártósor szállítókocsi gyártók, beszállítók, gyár
Egy pár
Transzfer kosár a portonKövetkező
Görgős transzfer kosárAkár ez is tetszhet
A szálláslekérdezés elküldése












